Nyheter
Projekt
Tävlingar
Om oss
Jobba hos oss
Kontakt
Nyheter
Projekt
Tävlingar
Om oss
Jobba hos oss
Kontakt
Sök...
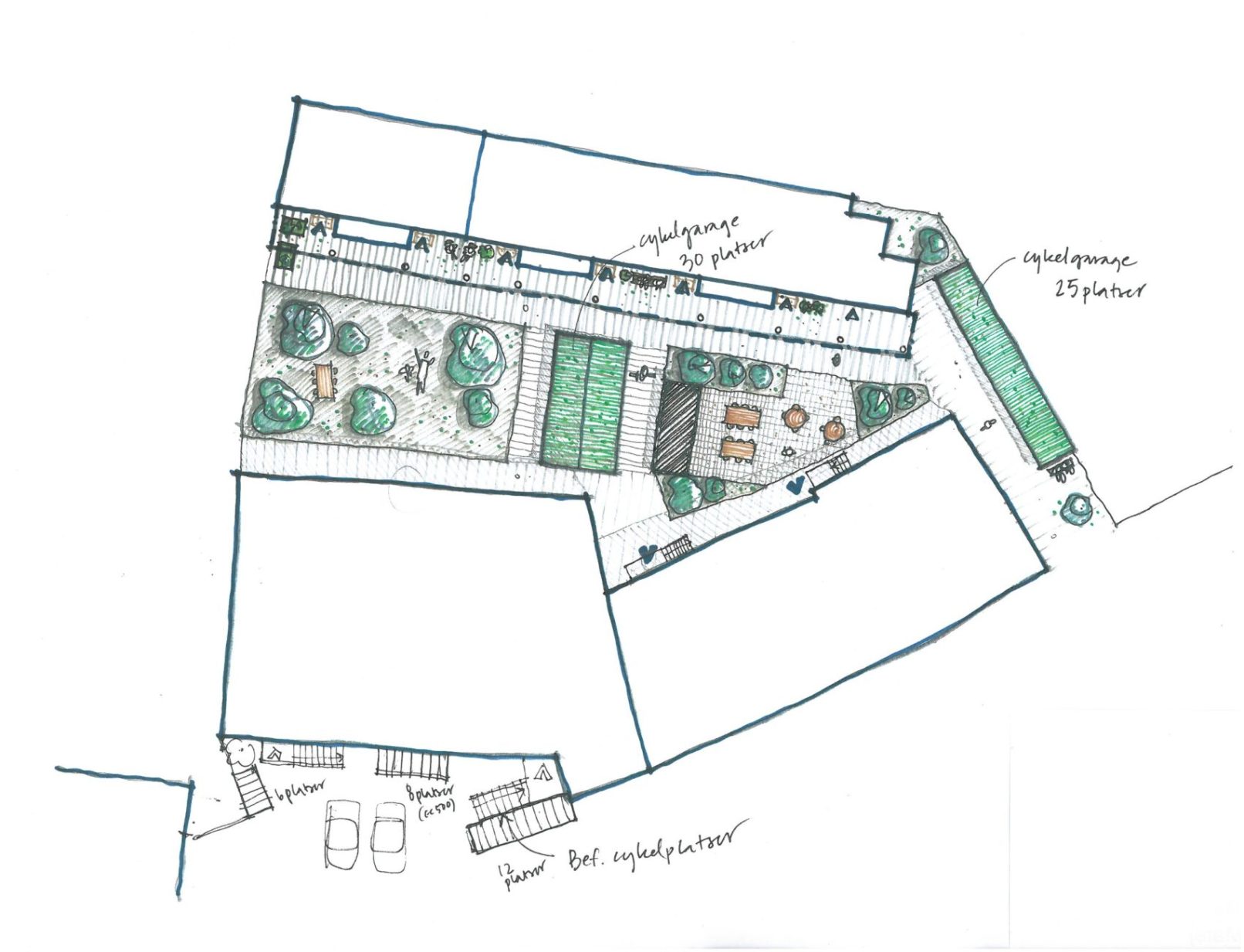
Wermlands nation
Kortinfo
Adress: Lund
Projektdatum: 2018
Arkitekt: V. Naumovski
Beställare: Vermlands Nation